Иван Безруков: «Многие загородные дома спроектированы, как большие «хрущевки»
«Прихожая, как шахта лифта, один санузел на четыре комнаты – и это дом вашей мечты? Большинство людей просто не предполагают, что можно строить и жить иначе», — мнение руководителя студии «ГраДиз».
Иван Безруков «собаку съел» на проектировании интерьеров, занимаясь этим без малого 20 лет. В 2007 г. он основал студию «ГраДиз», специализирующуюся на дизайне жилых пространств и архитектуре частных домов. Ранее Иван Безруков рассказывал DK.RU об ошибках, которые массово допускают в планировочных решениях квартир. Сегодня в фокусе внимания – загородные дома.
– Недавно к нам обратился мужчина, решивший построить загородный дом. Он принес готовый проект, чтобы мы переделали фасад (предложенный его совершенно не устраивал), и изображение «дома мечты». Мы сразу поняли: желанный образ невозможно соединить с запроектированным домом из-за разницы масштабов и пропорций.
Начали смотреть планировочное решение – и нашли множество ошибок. Точнее, весь проект был одной большой ошибкой. Воплотив его в жизнь, клиент получил бы «хрущевку», «раздутую» до 200 кв. м. Микроскопическая прихожая, напоминающая по размеру шахту лифта, где даже вдвоем не развернуться, отсутствие гардероба, некомфортная гостиная, в которой нельзя нормально смотреть телевизор, сидя на диване, – он противоположном углу, один санузел на четыре спальни на втором этаже, полное игнорирование мест хранения и так далее.
Почему такое планировочное решение изначально устроило клиента? Все просто: он не предполагал, что может быть иначе, рассуждал «квадратными метрами»: гостиная 30 кв. м. – отлично, как и спальня 20 кв. м., кухня 16 кв. м., детские по 15 кв. м., ванная 6 кв. м. Места больше, чем в квартире, значит, все хорошо. Но где хранить верхнюю одежду, постельное белье, детскую одежду и игрушки? Где постирочная? Где жена будет наносить макияж и хранить туфли и сумочки? Где будут стоять санки, лыжи, самокаты, квадроцикл? Почему-то никто об этом не задумывается. Проектировать надо так, чтобы у каждой вещи было свое место. В противном случае постоянный беспорядок уничтожит даже самый красивый дизайн.
Помните, в 90-е годы «девятка» считалась супермашиной, о которой мечтал каждый. Потом появились иномарки, пересев на которые люди ощутили разницу и поняли, что «девятка» – это «корыто». Культура потребления у нас сложилась, а культура комфортного проживания, к сожалению, нет.
Чтобы объяснить заказчику, что не так с его будущим домом, мы показали один из проектов нашей студии. Почему он лучше? Остановлюсь на нескольких моментах:
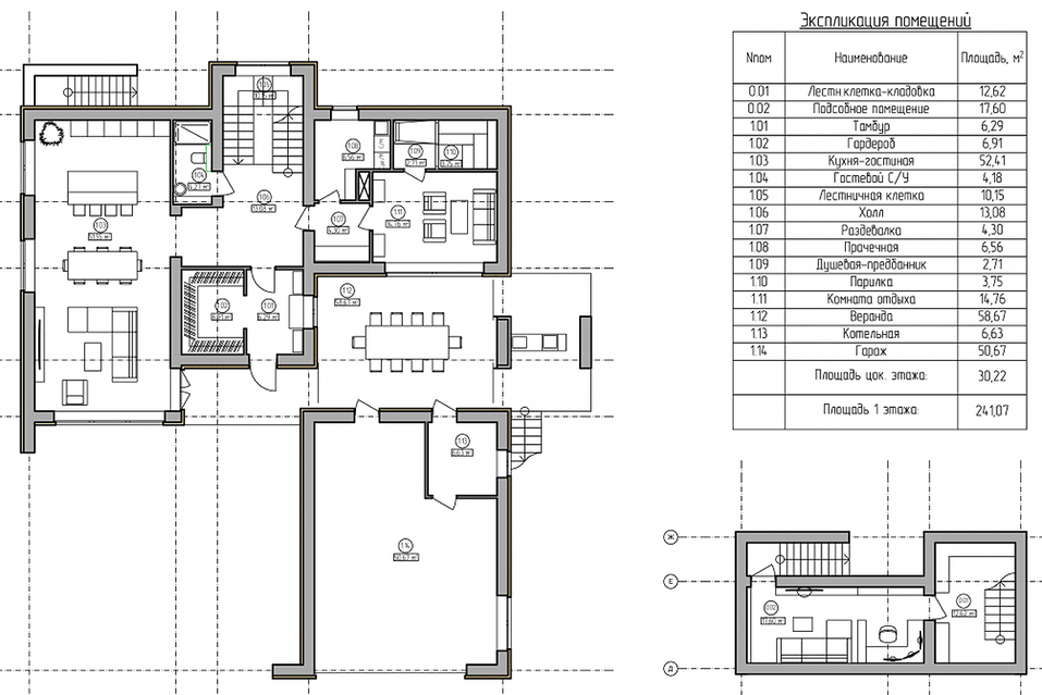
Первый. Прихожая площадью 6 кв. м., рядом с которой предусмотрен гардероб площадью 7 кв. м. Это рациональное решение, ведь, проживая в частном доме, мы одновременно используем больше одежды. Еще пространство прихожей задает настроение. Как «театр начинается с вешалки», так дом – с прихожей. Превращать ее в беспорядочный склад одежды и обуви точно не стоить, поэтому должна быть гардеробная, а не кое-как пристроенный шкаф.
Второй. Единое пространство кухни-столовой-гостиной площадью 50 кв. м., где домочадцы могут комфортно проводить время с семьей и гостями. Оно выполняет множество функций, поэтому должно быть разделено на зоны: диванная с ТВ и, возможно, с камином; столовая зона с большим, отдельно стоящим столом, ведь это место сбора семьи и гостей. Зону кухни важно сделать такой, чтобы она не напоминала производственный цех, а была модным, тусовочным местом: за барной стойкой можно поболтать и выпить вина, за островом – вместе готовить блинчики с детьми по утрам. Остров дает хозяйке возможность стоять к залу лицом, а не спиной. Это очень важный психологический момент. Эти нюансы делают кухню-гостиную идеальным пространством для общения.
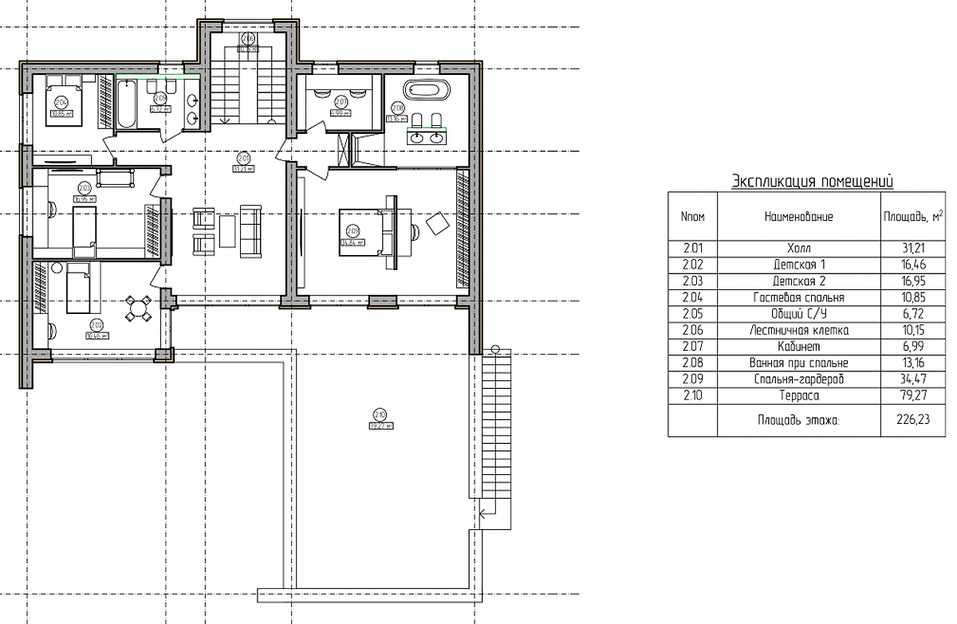
Третье. На втором этаже все правое «крыло» – это приватное пространство владельцев дома. Здесь расположена спальня с будуаром и гардеробом, а также ванная комната площадью 13 кв. м. Взрослые могут ею пользоваться, не выбегая в общий коридор. Есть небольшой кабинет хозяина дома – пространство не только для работы, но и для уединения от семейной суеты. Другие помещения на этаже – две детские комнаты, ванная, гостевая комната и общий холл, где можно поиграть или вместе почитать сказки на ночь.
Четвертое. Терраса над гаражом, на которую можно выходить из холла и из родительской спальни, любоваться закатом, рассветом, видом на реку.
Пятое. Мы отказались от отдельно стоящих бани и беседки, сделав их частью первого этажа. Это позволило заказчику сэкономить на строительстве и сохранить место на участке. Кроме того, так комфортнее.
Проект планировки первого этажа
Проект планировки второго этажа
Без ненужной скромности эти проекты – с которым пришел заказчик, и выполненный нашей студией, – как «девятка» и Mercedes.
Итог: первый проект «похоронили», сейчас «ГраДиз» проектирует клиенту дом, который будет соответствовать потребностям семьи и его вкусу. Конечно, площадь дома увеличится. Но об этом дальше.
Размер имеет значение. Еще какое!
Какой должна быть площадь загородного дома? Большинство заказчиков убеждены: достаточно 200 кв. м., максимум 250 кв. м. «Кухня 15 кв. м., зал – 20 кв. м., спальня, кабинет, две детские, комната для бабушки. Нам не нужны излишества», – типичный ответ. Обычно при таких расчетах ускользают из внимания полноценные санузлы, гардеробные, кладовые, пространство под лестницу на второй этаж...
Запроектировать дом в 200-250 кв. м. можно, однако все помещения будут излишне компактными (не всем это по вкусу).
Важно учитывать, что и в загородном доме, и в квартире должно быть приватное пространство, где можно остаться наедине с собой, и общественное. К сожалению, в квартирах первого зачастую не бывает – нет места. Многие женщины не хотят объединять кухню и гостиную. Знаете почему? Потому что кухня – единственное место, где можно побыть одной.
До революции в домах состоятельных людей были общественные пространства – для приема пищи, балов, бесед, и приватные – кабинет, будуар, собственные спальни у супругов. Конечно, в крестьянских избах пространство было организовано иначе. Думаю, каждый предпочел бы первый вариант. Загородный дом как раз позволяет его реализовать.
Разумеется, вмсте с увеличением площади дома вырастут затраты на проектирование, строительство, эксплуатацию. Однако, отказываясь от ряда функциональных помещений, вы жертвуете комфортом. Просто представьте, что, выбирая авто, вы решаете обойтись без кондиционера, мягкой подвески, коробки-автомата.
Типовой проект – это «жигули»
Планируя строительство дома, люди оказываются перед выбором: купить готовый типовой проект, или заказать индивидуальный. Большинство останавливается на первом варианте – из-за стоимости. Я не против типовых проектов, но за осознанный выбор. Важно понимать, что в этом случае уровень планировочного решения будет примерно таким, от которого отказался заказчик, обратившийся к нам с запросом на изменение дизайна фасада. Потому что авторы проектируют квадратными метрами – «впихивают» определенный набор комнат определенной квадратуры в заданный метраж дома. В таких проектах не учитываются индивидуальные потребности заказчика и его семьи. Как и такие принципиальные вещи, как геология, посадка дома на участке, инсоляция, особенности климата и снеговые нагрузки – неизвестно, для какого региона создавался проект: для Урала или для Сочи. Наконец, не учтены виды из окон. А это очень важно в загородном доме!
В нашем проекте окна основных помещений открываются на видовую сторону, с трех сторон (где соседи) дом слегка напоминает крепость, но фасад, выходящий во двор, рождает ощущение теплоты, открытости.
Да, индивидуальный проект в разы дороже типового. Но это не траты, а вложение. Потому что такой подход обеспечит совершенно другое качество жизни. И «девятка», и Mercedes – по сути, «железка» с колесами, позволяющая доехать из точки А в точку Б. Просто на Мерседесе ездить комфортнее. Машину вы поменяете через 3-5 лет, дом – вряд ли. Вы в любом случае вложите в него миллионы. Если из-за плохого проектирования проживание в доме не будет комфортным, то экономия 300-500 тыс. руб. на старте точно не будет вам казаться рациональной и правильной.
Да, на «жигулях» многие ездили и радовались, но ведь сегодня можно по-другому.
«Давайте сделаем это по-быстрому»
Многие ошибочно полагают, что строительство – долгий и сложный процесс, а проектирование – нет. Давайте разложим:
– эскизный проект –1-1,5 месяца
– архитектурный проект – 1,5 месяца. После его утверждения можно приступить к строительству или к разработке ландшафтного дизайна, чтобы потом одновременно выполнить все бетонные работы.
– дизайн-проект
– проект инженерных систем (электрика, отопление, водоснабжение). Почему так? Приведу простой пример: без дизайн-проекта строители не смогут выполнить электропроводку – не понятно, где в доме будут светильники.
По опыту, на проектирование и согласование уходит минимум полгода.
Резюме: если вам нужен Mercedes, а не «девятка», уделите внимание проектированию, узнайте больше о современных планировочных решениях и грамотно рассчитайте время на подготовку.










