Какие планировки отравляют нам жизнь и можно ли это исправить — Иван Безруков
«За 20 лет жизнь и уклад в стране изменились, а жилье — нет. Можно потратить 30 миллионов на светлое будущее в новой квартире и ощущать себя в ней несчастным». — Мнение руководителя студии «ГраДиз».
Дизайн интерьера стал очень популярен, все хотят, чтобы он был. Однако немногие понимают, что это: из чего состоит проект, сколько стоит его воплощение и почему именно столько, в какой момент и для решения каких задач привлекать дизайнера.
«Грамотный дизайнер поможет не только выбрать цвет стен и расставить мебель, но и сэкономить миллионы рублей, и даже сохранить семью, — уверяет руководитель студии «ГраДиз» Иван Безруков. — Громкое заявление? Я его обосную».
СПРАВКА
в 2000 году закончил УрГАХА по специальности «Дизайн интерьера».
В 2007 году основал студию «ГраДиз». Студия специализируется на дизайне жилых пространств — квартир и домов.
Это «не лечится»: квартиры, где нельзя жить
Главные критерии выбора квартиры — локация и количество квадратных метров. До момента покупки 90% людей всерьез не задумываются о возможности правильной организации пространства. В чем проблема? Зачастую в новых жилых комплексах не учтены потребности современной семьи. И высокий класс автоматически этого не гарантирует. Печально, но факт: я видел множество квартир в домах бизнес- и элит-класса с планировочными решениями, как в советских панельках, только большей площади. Жизнь и уклад изменились, а жилье — нет.
Недавно изучал планировку трехкомнатной квартиры в строящемся премиальном комплексе — и прослезился. Авторы нарушили базовые принципы организации жилого пространства: человек с порога попадает в приватную зону — спальню хозяев, которую, в свою очередь, невозможно правильно выстроить.
Базовые принципы: что это?
Остановлюсь на нескольких моментах. С древнейших времен семейный быт строится вокруг очага. Сегодня это не костер в пещере, на котором жарится мясо мамонта, и не печь, а кухня, напичканная техникой. Тем не менее, базовые потребности людей не изменились: мы собираемся у «очага», готовим, едим, общаемся, а потом расходимся по спальням. Во многих квартирах нарушена сама логика организации пространства. Вы можете не знать о существовании базовых принципов, но будете ощущать дискомфорт.
Пространство квартиры состоит из гостевой зоны (кухня-столовая, гостиная, общий гардероб, гостевой санузел) и приватной (спальни, кабинет). Первая должна располагаться ближе к входу, либо эти помещения группируются в одной части квартиры, а приватные — с другой стороны и/или дальше от входа.
Родительская спальня (мастер-спальня) — это три помещения (спальня, гардероб и ванная), расположенные за одной дверью. Ни один застройщик не предлагает такого решения. Но здравый смысл подсказывает, что бежать после секса в ванную через коридор крайне некомфортно.
Ванна-СПА. Проект студии «ГраДиз»
Я читал много исследований о планировках, проверял выводы авторов на практике — общаясь с клиентами после завершения проектов, и вывел ряд аксиом. Вот одна из них: оптимальная композиция кухни — островная. Такие кухни вы увидите в 80-85% проектов студии «Градиз». Линейная композиция обрекает вас готовить лицом к стене и спиной к присутствующим. Это затрудняет коммуникацию, ведь нет шанса встретиться глазами. Кроме того, готовить вдвоем или втроем неудобно — каждую минуту то справа, то слева кто-то мешает. Остров кардинально меняет ситуацию: хозяйка разворачивается лицом к присутствующим, появляется элемент общения — и семья объединяется, а ежедневное приготовление еды перестает быть бременем, превращаясь в удовольствие.
Проекты студии «ГраДиз»
Планировка квартиры влияет на внутреннее состояние людей в ней живущих: может вызывать состояние спокойствия и уюта, или нервозности и раздражения, или драйва, движения. Пространство воздействует на нас. При помощи планировочного решения мы формируем сценарий жизни людей в квартире, можем сделать ее лучше или хуже.
Продать, нельзя исправить
Средствами и приемами дизайна — цветом, освещением — можно поправить многие «огрехи» жилья. Но если при проектировании квартиры нарушены базовые принципы, дизайн не спасет. Бывает, человек тратит 20-30 млн руб. на квартиру в красивом месте, в хорошем доме, но правильно сформировать пространство под задачи его семьи невозможно.
Мне искренне жаль таких людей: они вбухали огромные деньги в «светлое будущее», но их базовые потребности не удовлетворены.
Клиенты, с которыми мы давно работаем, консультируются с нами на этапе выбора квартиры, они не хотят рисковать миллионами на старте. Мы изучаем «вводные» и делаем вывод о достоинствах, недостатках и возможностях того или иного проекта. В некоторых случаях убеждаем клиентов пересмотреть выбор в пользу другой квартиры и даже дома. Если квартира приобретена, но мы видим, что условия не позволят сделать пространство гармоничным, рекомендуем продать. Некоторые так и поступают.
Бесполезные квадраты превращаются в полезную площадь
С помощью планировки дизайнер может спасти сотни тысяч, даже миллионы рублей заказчика. Мы регулярно находим в проектах бесполезные, но очень дорогие квадратные метры, за счет которых можно увеличить площадь жилых помещений или сделать их более функциональными.
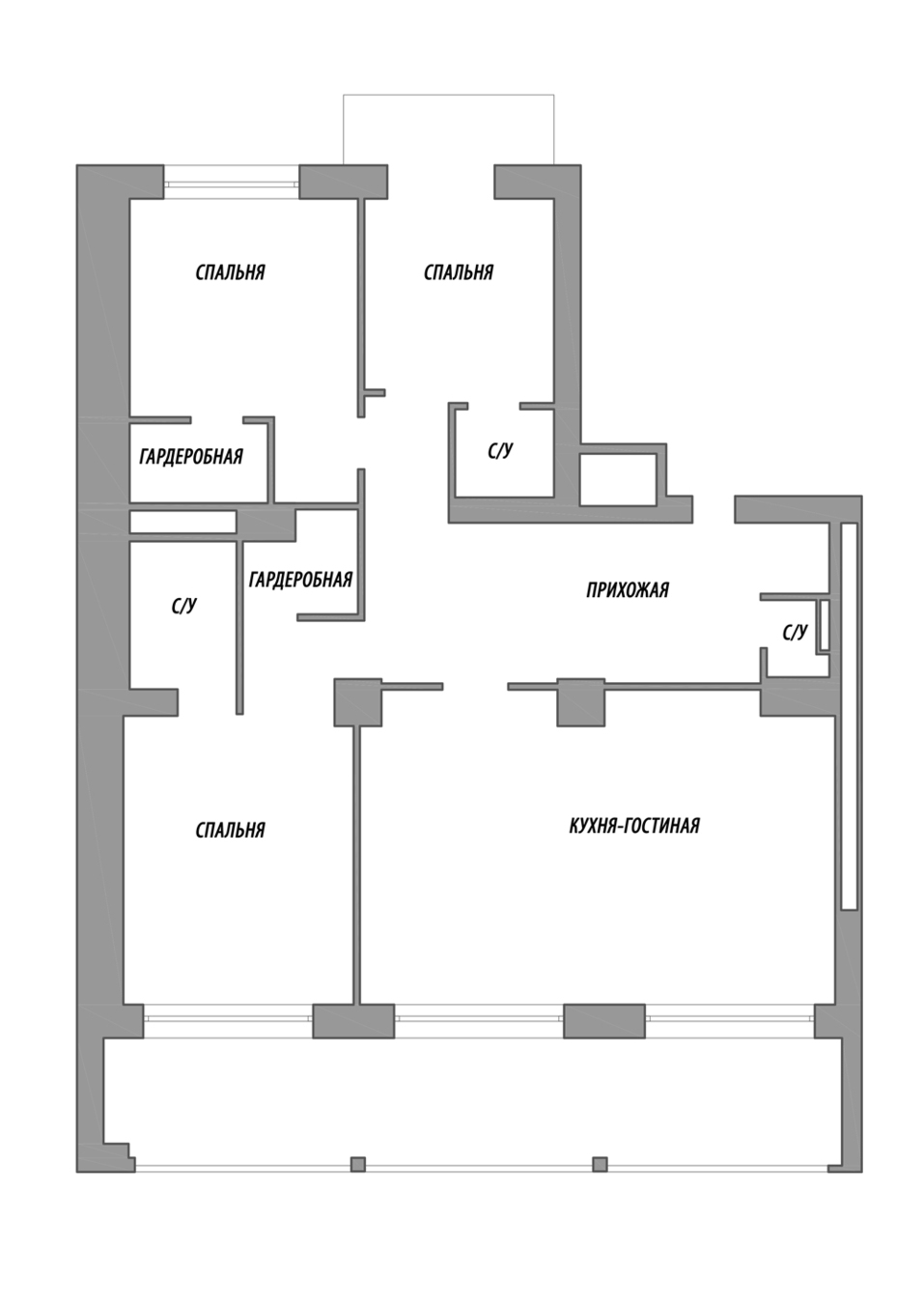
Нередко черной дырой, в которой исчезают деньги, становятся коридоры — пространство, абсолютно не используемое в повседневной жизни. В некоторых ситуациях нам удается увеличить за счет него площадь ванной комнаты.
Перепланировка квартиры для семейной пары: до и после. Часть огромного коридора «ушла» в пользу гостиной, увеличили хозяйскую ванную комнату: дизайнеры «ГраДиз» создали там полноценную спа-зону, где разместили душ, ванну, унитаз. Убрали стиральную машину в постирочную
Квартира для семейной пары с ребенком. Здесь дизайнеры увеличили пространство санузлов за счет коридоров. Сделали санузел с душем в родительской спальне — сформировали полноценный приватный блок: мастер-спальня, гардеробная, ванная. В «детской ванне» достаточно места, чтобы разместить и бытовые вещи
Приватный санузел
Проблема с планировкой может «всплыть» и на этапе расстановки мебели. Казалось бы, отличный дом, комнаты по 40 квадратов, а мебель не компонуется так, как хотелось бы — здесь мешает окно, здесь — дверной проем, а тут немного не хватает длины стены… Площадей предостаточно, а гармонии в интерьере нет.
Как спасти деньги и сохранить нервы?
Как правило, к дизайнерам обращаются после покупки квартиры. Я убежден, разумнее и целесообразнее привлекать профессионала на этапе выбора в качестве консультанта. Ну зачем вам выбрасывать несколько миллионов на бесполезный коридор?
Мы задаем клиентам ряд вопросов о составе семьи, увлечениях, приоритетах. Одному члену семьи нужен спортивный уголок, другому — гардеробная, третьему — кабинет с библиотекой, а еще у них собака и два кота. Из этих пазлов складывается образ жизни семьи и картина базовых потребностей. Имея этот список и планировку перед глазами, дизайнер оценит, можно ли удовлетворить их в этом пространстве, или нельзя, или можно, но с оговорками. Полученная информация позволит вам принять взвешенное решение — брать квартиру или поискать другую.
«Шкурный» вопрос
Я занимаюсь интерьерами почти 20 лет, студии «Градиз» — 12 лет. Мы «собаку съели» на расчетах. Стоимость реализации самого скромного дизайнерского интерьера сегодня стартует от 70 тыс. рублей за квадратный метр. В эту сумму входит все: отделочные материалы, работа, наполнение. Львиная доля бюджета тратится на мебель, технику и материалы, деньги за дизайн-проект — капля в этом «море».
Бывает, к нам приходят со словами: «У нас квартира 100 кв. м и миллион на ремонт». Но стоимость услуг хорошей строительной бригады составляет 12-15 тыс. руб. за кв. м. Что произойдет дальше, нетрудно просчитать: бюджет заказчика закончится на отделке стен.
Можно найти бригаду выходцев из стран ближнего зарубежья или просто мастера на все руки — вы сэкономите, но это будет не дизайнерский ремонт. За него придется отдать примерно столько же, сколько вы заплатили за квартиру. Далеко не все знают об этом.
Я убежден, лучше рассчитать и спланировать бюджет на старте.











