Власти Екатеринбурга согласовали землю для строительства замыкающей части ЕКАДа / СХЕМА
Администрация Екатеринбурга утвердила земельные участки для возведения развязки в районе, где ЕКАД примыкает к трассе «Урал». Замкнуть кольцо планируется через несколько лет.
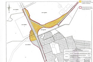
В Екатеринбурге утвердили схему расположения площадки для строительства развязки в районе примыкания ЕКАДа к трассе «Урал», сообщает пресс-служба горадминистрации. Такое решение 17 февраля приняла городская комиссия по выбору земельных участков. Через несколько лет на участке планируется завершить строительство южного участка кольцевой автодороги от Полевского до Челябинского тракта и замкнуть ее.
Под сооружение элементов автомобильной развязки в районе перекрестка Челябинского тракта и начального участка ЕКАД, вблизи поселков Семь Ключей и Большой Исток, отвели почти 330 тыс. кв. м. Строительство южного участка трассы протяженностью 35,7 км идет с 2011 г. Сейчас практически закончено возведение первого пускового комплекса полукольца длиной 10 км, и дорожные строители работают недалеко от Полевского тракта. Закончить строительство южного полукольца ЕКАД планируется в 2016 г.
Фото: Ekburg.ru
Как сообщал DK.RU, в конце августа был утвержден участок для развязки третьего пускового комплекса ЕКАД на участке Семь Ключей — Большой Исток. Согласно первому варианту прохождения дороги, трасса пойдет в обход Южного лесопарка. Второй вариант, напротив, подразумевает прохождение по его территории. По третьему плану предполагается проложить участок по территории перспективной малоэтажной застройки Попов Лог.
Справка:
Строительство ЕКАД началось в 1994 г., его общая протяженность составляет 94,38 км. Пять участков длиной 58,655 км введены в эксплуатацию с 1997 по 2011 гг. Протяженность третьего пускового комплекса составляет 14,49 км, он завершит южное полукольцо. Строительство должно занять 2,5 года. Планируется, что с 2014 по 2017 гг. объем финансирования строительства и реконструкции ЕКАД составит 10,3 млрд руб.



