X5 Retail Group построит в Екатеринбурге огромный распредцентр
Рядом с аэропортом Кольцово появится большой комплекс, где построят распределительный центр X5 Retail Group, несколько автосалонов, а также производственные и торговые объекты.
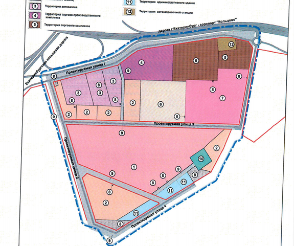
Свердловский Минстрой утвердил проект планировки территории рядом с развязкой на Кольцовском тракте, почти вплотную к аэропорту, говорится в документах на сайте ведомства. На участке площадью 66 га появятся три автосалона, большой логистический комплекс, производственные, складские и торговые здания, а также офисы. В логопарке также построят 3,6 км новых дорог. Застройщиком выступает компания «Уралстройтэк», входящая в ГК «Атлас девелопмент», пишет портал E1. Разработать проект ей разрешили еще в 2013 г.
Генеральный директор компании Владимир Городенкер сказал, что X5 Retail Group собирается построить распредцентр площадью 35 тыс. кв. м — с его помощью ритейлер будет обслуживать все магазины региона. По его словам, строительство стартует в этом году и будет завершено в следующем. Подобный объект крупнейшей в России ТС «Магнит» находится на трассе между Екатеринбургом и Первоуральском.
«Компания искала участок под большой логистический комплекс около двух лет, и год назад её представители остановились на нашем участке. Они получили множество предложений по размещению, но предпочли дождаться, когда будет утверждён проект планировки нашего логопарка, поскольку их устроило местоположение участка», — сказал изданию г-н Городенкер.
Фото: официальная документация проекта
Скорее всего, рядом появится еще один распределительный центр федерального ритейлера, который займет 40 тыс. кв. м. Но пока название компании не раскрывается. В проектируемых автосалонах планируется продавать строительную технику марок Сaterpillar, Mitsuber и Case.



