«Обидно потратить миллионы на дом и не получить удовольствия от жизни в нем»
Первое, о чем мы думаем после покупки участка, это строительство дома. С чего начать? Кто-то займется поисками строительной компании. Другие будут искать уже готовый проект на просторах интернета.
Обращаясь в строительную компанию, человек попадает в своего рода «конвейер». Там дают варианты типовых проектов. По выбранному сценарию строят дом. Казалось, вот оно — получите, распишитесь. Но, нужно понимать, что, строя дом своей мечты, лучше забыть такие слова, как дешево, бесплатно и быстро. Хорошая работа стоит денег и, конечно, займет немало времени.
Типовой проект на то и типовой, он не учитывает многих факторов:
- сценария жизни заказчика, это когда все пространство адаптировано под жизнь конкретной семьи (владельца);
- особенностей грунта;
- правил застройки конкретного коттеджного поселка;
- солнечной световой инсоляции, это расположение комнат в доме в зависимости от солнечного света;
- какой открывается вид из окон;
- ландшафта;
- внешнего вида других строений;
- климатических особенностей.
Подробнее обо всех преимуществах индивидуальных проектов DK.RU рассказал Иван Безруков, руководитель дизайн-студии «Градиз».
Типовой проект не учитывает сценария жизни заказчика
Главное отличие индивидуального проекта дома от типового состоит в том, что индивидуальный проект учитывает уклад жизни домочадцев, привычки: кто во сколько встает, как перемещается, из скольки человек состоит семья, сколько в семье автомобилей, как проводят свободное время, увлечения и т.д. От этого будет зависеть расположение и количество комнат, этажность, наличие подвала или мансарды, беседки, бани, комнат для хобби и т.д.
Не так давно к нам за помощью обратился молодой человек. Он принес типовой проект дома и попросил поработать только с фасадом. В процессе разговора выяснилось, что дом рассчитан на него, жену и отца, у которого есть некоторые ограничения по здоровью, и передвигался он с трудом.
Фото: дом в деревенском английском стиле, Свердловская область
В изначальном проекте предполагалось, что отец будет жить на втором этаже. Но как? Не очень понятно. Кроме того, типовой проект предусматривал четыре спальни на втором этаже и одну ванную комнату. По всей видимости, ее посещение предполагалось по записи. В итоге пришлось полностью переделывать проект. Отцу спроектировали отдельное пространство на первом этаже, с другим входом, ванной комнатой, мини-кухней и комфортной зоной для сна и отдыха. А на втором этаже добавили санузел в самой спальне, по типу гостиничного номера.
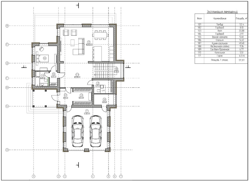
Фото: план первого этажа дома
Далее в прихожей предложили добавить гардеробную комнату, это решило вопрос, куда деть всю верхнюю одежду, и не только свою, но и гостей. Еще один момент: в семье планировалось пополнение. Конечно же, типовой проект этого не учитывал. А дом-то, повторюсь, строят с перспективой на будущее. Поэтому мы учли не только, как и где будут жить дети, пока они будут маленькими, но и то, как они будут незаметно проскальзывать в дом, будучи в подростковом возрасте. Например, сделали отдельный вход, чтобы ребенок чувствовал свою самостоятельность и в то же время был под присмотром. В этом также поможет беседка на территории, туда можно пригласить друзей или устраивать семейные пикники.
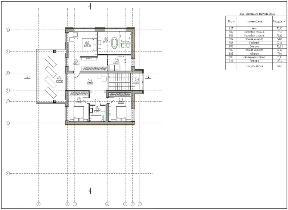
Фото: план второго этажа дома
Индивидуальный проект с учетом сценария жизни заказчика — это залог не только элементарного комфорта, но и здоровых отношений в семье.
Индивидуальный проект дома учитывает тип грунта, на который будет «посажен» дом
Что самое важное в доме? Правильно! Прочный фундамент. Готовые типовые проекты, как правило, не учитывают особенностей грунта, на котором будет возведен дом. А тем временем только на территории нашей области можно встретить самые разнообразные виды почв: глинистые, суглинистые, болотистые и даже скалистые. Плюс перепады температур: земля то замерзает, то оттаивает. Чтобы фундамент попросту не треснул, необходимо учитывать тип почвы, на которой он будет расположен. Мы берем пробы грунта сразу после составления эскизного проекта, выясняем его состав и плотность. Так проще понять, с чем придется иметь дело. Это поможет избежать сюрпризов в будущем в виде трещин и промерзания дома.
<<<Читайте также: Сколько стоит дом построить — спецпроект DK.RU>>>
Типовой проект не учитывает правил застройки конкретного коттеджного поселка
Начну с того, что построить дом по всем земельным нормам и правилам — одна из приоритетных задач нашего архитектурного бюро. Вторая — сделать красиво, удобно, эргономично, не нарушая требований к внешнему виду домов в поселках. Не могу сказать, что эти правила серьезные, но они есть. Надо вписываться и быть при этом оригинальными.
Из практики: мы разрабатывали проект дома на территории гольф-клуба в Сысертском районе. Застройщик поставил там небольшие домики выходного дня. Все — в едином стиле, небольшие, примерно по 100 м2. Наш проект рассчитан почти на 500 м2. Чтобы не выделяться на фоне других построек, мы «разделили» наш дом на три части, сделали скошенные крыши, как у существующих домов, добавили дерево и планкен в отделку фасада. Сработало — дом понравился и застройщику, и клиенту.
Фото: дом с бассейном в Сысертском районе
Индивидуальные проекты разрабатываются с учетом инсоляции
Солнечный свет для людей архиважен. Поэтому при разработке индивидуального проекта дома необходимо учитывать, с какой стороны встает солнце, как перемещается за день. Вообще солнечный свет — самое ценное, что есть в интерьере. Под него подстраиваются комнаты в доме. Например, кухню хорошо делать с окнами на восток — встаешь и готовишь завтрак, глядя на утренние лучи, а вот детскую лучше всего располагать на южной стороне.
Еще один важный момент, который не учитывает типовой проект, — тень. Зная, как меняет положение солнце, можно рассчитать необходимую высоту строений, чтобы, к примеру, тень от дома не попадала на полянку с цветами.
Фото: правильная инсоляция комнаты
Типовые проекты не учитывают вид из окон
Дом — это не просто коробка для жилья. Его надо строить под свои ценности, под свой жизненный сценарий. А типовые дома — они, как «доширак»: вроде наелся, а удовольствия никакого и здоровью явно не на пользу. И уж точно ни один типовой проект не учтет, с каким видом из окна вы будете засыпать и просыпаться.
Фото: вид из окна дома в Сысертском районе
В качестве примера приведу все тот же проект в Сысертском районе. Участок расположен на холме, за холмом лес, внизу перед участком еще две линии домов, а за ними красивые поля, опушки и лужайки. Мы проектировали так, чтобы окна всех главных комнат смотрели на эту красоту, чтобы хозяева и их гости могли любоваться этим прекрасным видом.
Индивидуальный проект создается под определенный ландшафт и учитывает перепады высот на участке
Такой проект мы реализовали все в том же Сысертском районе. Получился разноуровневый дом на скале. Кстати, под скалой находится гараж, а из него на первый и третий уровни идет лифт. Дом окружен дорожками и лестницами, чтобы гулять по территории и наслаждаться прекрасными видами.
Фото: проект «Гранатовая скала», район «бажовских мест»
Индивидуальный проект учитывает расположение и внешний вид других строений на участке
Как правило, дом за городом — это место обитания целой семьи. Уже на первом этапе индивидуального проектирования дома мы смотрим на сценарий жизни заказчика. Например, у него есть жена, двое детей, родители-пенсионеры и маленькая собачка. И у каждого члена семьи есть свои привычки. Например, отец семейства любит ходить в баню, ребенок — бегать по площадке, мама — наблюдать за чадом из беседки. Наша задача расположить на участке строения таким образом, чтобы всем было удобно: тут баня, тут батут, тут полянка для активных игр. Типовой проект дома таких деталей, конечно, не учитывает.
Да, можно купить отдельно дом, отдельно баню, отдельно беседку. Но, во-первых, они никак не будут сочетаться друг с другом, а, во-вторых, все эти строения могут просто-напросто не войти на участок (ведь есть ГПЗУ, в которых прописано необходимое расстояние от построек до края земельного участка).
Приведу пример: наше бюро проектировало дом в КП «Родные просторы». Участок большой, но неправильной формы — треугольный.
Фото: расположение строений на участке в КП «Родные просторы»
Задача от заказчика: поставить на треугольном участке и дом, и баню, и гараж. Еще нужно учесть виды из окон. А хозяйка дома попросила распределить помещения по фен-шую. Фен-шуй для нас — не проблема, а вот заранее заказанная клиентом баня, которая не подходила под архитектуру дома и размеры участка, — сложность. В итоге придумали такой выход: вместили на длинную сторону участка все главные строения и объединили их одной крышей. С другой стороны между постройками осталось достаточно места, что помогло «подсветить» каждое строение по отдельности.
Фото: проект дома в КП «Родные просторы»
Индивидуальный проект учитывает особенности местного климата
Давайте представим, что вы заказываете типовой проект будущего дома. Для какого региона он был проектирован? Для южных широт? Для непредсказуемой уральской погоды? Условному дому в Сочи, к примеру, надо меньше утеплителя, чем дому в Сибири. Как-то мы занимались разработкой индивидуального проекта дома в Испании — для него мы даже не закладывали такой расходник, как утеплитель.
Фото: индивидуальный архитектурный проект дома в Аликанте, Испания
В качестве резюме
Индивидуальный проект дома заказывают люди, которые точно знают, что такое комфорт, и не хотят дом «для галочки». Если человек действительно вкладывается в дом и готов платить за индивидуальную разработку проекта, он получает:
— Нетиповой оригинальный проект, который оторвут с руками и ногами в случае продажи;
— Строительную бригаду (мы знаем, кто может действительно хорошо построить дом. Таких специалистов и рекомендуем);
— Технадзор на каждом этапе строительства;
— Смету, в которой будет прописано необходимое количество того или иного материала;
— Дом мечты, в котором будет приятно и комфортно жить всей семьей.
Сайт архитектурного бюро «Градиз»
Читайте также:
<<<Иван Безруков: «Многие загородные дома спроектированы, как большие «хрущевки»>>>
<<< Какие планировки отравляют нам жизнь и можно ли это исправить — Иван Безруков>>>














